Expertises
Matériaux
- CERAPUR Onyx Ivoire Luxe
- mdf laqué blanc
- Mélaminé Congo
- Mélaminé super-blanc
- Placage chêne naturel vernis mat
- Portes sans poignées en push-lach
Lorsqu’on acquiert un appartement neuf, c’est un moment important dans la vie d’une personne ou d’une famille ! Souvent livré nu (ou dans le projet qui nous intéresse ici avec une cuisine intégrée déjà en place), il s’agit à présent de l’aménager. Notre cliente a fait le (bon) choix de s’adresser à BeHome Interiors Luxembourg pour l’aménagement intérieur de leur bien immobilier à Hesperange, de l’entrée au salon.

Etat des lieux
Lorsque nous nous rendons à Hesperange pour rencontrer notre cliente et découvrir le logement fraîchement livré, nous comprenons rapidement ce qui l’a séduite. La pièce principale de cet appartement est d’une belle surface, non encore cloisonnée, qui permet d’imaginer un espace ouvert composé de la cuisine (déjà installée), du salon et du séjour. Donnant sur une grande terrasse, les baies vitrées apportent une lumière naturelle très agréable.
«Mon appartement neuf à peine livré, j’ai rapidement soumis mon souhait d’aménagement à plusieurs architectes d’intérieur. J’ai fait le choix de BeHome Interiors Luxembourg en découvrant leurs réalisations sur leur site internet d’abord, puis en rencontrant Fabrice, qui a supervisé, avec son équipe, la création, les commandes de mobiliers et la pose de l’ensemble. Un grand merci!»
Imaginer et aménager l’appartement neuf à Hesperange…
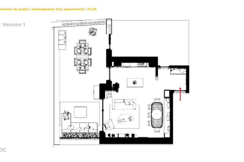
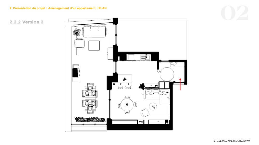
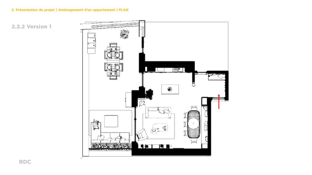
Hormis la cuisine déjà en place, cet appartement neuf à Hesperange s’annonce comme un beau terrain de jeu pour nos architectes d’intérieur. Une surface moyenne d’environ 40 mètres carré, au beau potentiel, permet d’envisager plusieurs zones de vie pour la famille. Un moodboard fait partie de la première étape, proposant une orientation colorée et des matériaux divers en accord avec les échanges réalisés avec la cliente. Deux variantes d’organisation de l’espace sont proposées sous forme de deux plans au sol.
Puis le traduire en 3D, comme si on y était
Un projet d’aménagement intérieur n’est pas toujours aisé à saisir sur un plan en 2D, de surcroît réalisé en traits noirs et vu du dessus. Le rendu en 3D réaliste offre un confort de compréhension indéniable et nous permet de soumettre à notre cliente d’Hesperange la vision que nous avons de son futur appartement. Des variantes colorées, simples à décliner, permettent d’affiner certaines hésitations.
Un meuble en entrée
L’entrée, pour commencer, va pouvoir être accueillante grâce à un meuble de rangement avec une assise et doté d’un miroir, aussi utile pour agrandir l’espace que pour vérifier son style avant de sortir le soir à Hesperange ou d’aller travailler.
Séparation ingénieuse
A peine l’entrée franchie, une seconde idée d’aménagement se dévoile… Ce claustra/persienne possède des lames orientables qu’on peut ouvrir ou fermer d’une simple poussée. Cela confère un côté très chic à cette séparation à bonne échelle.
Focus sur le claustra/persiennes à lames orientables
Magique non?
Une grande bibliothèque murale
Le meuble principal de cet aménagement d’intérieur à Hesperange se déploie sur un mur complet de près de 5 mètres. La bibliothèque confère à cet appartement neuf un style unique à travers ses trois coloris indémodables que sont le blanc, le bois et le gris. Même le chat a droit à sa place, une niche étant découper pour lui permettre de s’y loger à sa guise.
Un îlot pour combler la cuisine
La proposition d’ajout de cet îlot est l’occasion de combler le manque d’un meuble utile au niveau de la cuisine. Il crée une séparation visuelle entre celle-ci et le salon et un endroit convivial et pratique pendant qu’on prépare le repas. Le plan de travail est en onyx ivoire luxe, qui lui donne un cachet très chic.
Culture en lumière
La bibliothèque se dote d’un éclairage dimable, géré par télécommande, permettant de créer et de varier une ambiance plus ou moins chaleureuse. Cela met bien en lumière des objets et ouvrages. Lorsqu’il sera rempli, le meuble sur mesure exprimera toute sa splendeur et sa majesté.
Meuble sur mesure et sur catalogue
Partant de zéro pour sa nouvelle vie dans cet appartement, notre cliente nous a délégué la proposition et la commande de l’ensemble des meubles meublants: Tables, chaises, fauteuils, canapés de la marque de création Bonaldo, mais aussi les éclairages de chez Wever & Ducré. Nous sommes en mesure de proposer de très beaux catalogues de meubles design, de gamme premium et même luxe.
Vous avez fait l’acquisition d’un bien immobilier neuf à Hesperange ou ailleurs et souhaitez l’aménager?
Votre projet d’appartement ou de maison neuve est terminé et il s’agit à présent de l’aménager? Que ce soit pour des idées (à travers une étude) ou un projet concret de création d’aménagement et de meubles sur mesure, BeHome Luxembourg vous accompagne de A à Z! L’Aménagement d’intérieur dans le neuf, tout comme dans l’ancien, est un art que BeHome Interiors exerce avec passion. Venez visiter notre Showroom à Luxembourg ou contactez-nous pour un premier rendez-vous.